top of page


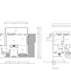
Perfekte Hauspläne: Wie wir Papierzeichnungen in präzise AutoCAD-Entwürfe umwandeln
Wir digitalisieren Hauspläne präzise in AutoCAD. Perfekte Pläne für zweistöckige Häuser, inklusive AutoCAD-DWG-Dateien, ideal für Änderungen
27. Okt. 20241 Min. Lesezeit


Hausgrundriss mit Angaben zu den Standorten von Steckdosen, Schaltern und Leuchten
Individuelle Hausgrundrisse mit Steckdosen, Schaltern und Leuchten basierend auf Excel-Skizzen. Wir digitalisieren Ihre Pläne.
18. Okt. 20242 Min. Lesezeit


Verkaufsanzeige in Ihrem Stil: Maßgeschneiderte 2D-Hauszeichnungen
Professionelle 2D-Hauszeichnungen für Verkaufsanzeigen: Wir verwandeln Ihre Vision in detaillierte Grundrisse.
18. Okt. 20242 Min. Lesezeit
bottom of page
